海灣消防模塊83系列接線圖大全
海灣有11個左右的消防模塊,對外接線端子圖相對存在差異性,不用搞不清思緒,本文將海灣常用消防模塊接線圖(包括:輸入模塊、輸出模塊、輸入輸出模塊、切換模塊等)進行統一整理,讓你一次看個夠。
一、GST-LD-8319輸入模塊

點擊圖片進入GST-LD-8319輸入模塊產品詳細頁
對外接線端子圖如圖1:
圖1 GST-LD-8319對外接線端子圖
圖中端子說明如下:
Z1、Z2:接控制器二總線,無極性
D1、D2:接直流24V,無極性
O-、O+:輸出,有極性
GST-LD-8319輸入模塊與非編碼探測器串聯連接時,探測器的底座上應接二極管1N5819,且輸出回路終端必須接GST-LD-8320或GST-LD-8320A終端器,終端器可當探測器底座使用,即在此終端器上可安裝非編碼探測器,其系統構成圖如圖2:

圖2 系統構成圖
當終端器不作為探測器底座使用時,應加裝上蓋,系統構成圖如圖3:

圖3 系統構成圖
二、GST-LD-8300輸入模塊

點擊圖片進入GST-LD-8300輸入模塊產品詳情頁
本模塊的外形及結構與GST-LD-8319輸入模塊相同,安裝方法也相同,其對外端子示意如圖4

圖4 GST-LD-8300輸入模塊對外端子示意圖
其中:
Z1、Z2:與控制器信號二總線連接的端子
I、G:與設備的無源常開觸點(設備動作閉合報警型)連接;也可通過電子編碼器設置為常閉輸入
模塊與具有常開無源觸點的現場設備連接方法如圖5所示。模塊輸入設定參數設為常開檢線。

圖5 模塊與具有常開無源觸點的現場設備連接方法
模塊與具有常閉無源觸點的現場設備連接方法如圖6所示,模塊輸入設定參數設為常閉檢線。

圖6 模塊與具有常閉無源觸點的現場設備連接方法
三、GST-LD-8301輸入輸出模塊
GST-LD-8301模塊的外形尺寸及結構與GST-LD-8319輸入模塊相同,安裝方法也相同,其對外端子示意圖如圖7:

圖7 GST-LD-8319輸入模塊對外端子示意圖
其中:
Z1、Z2:接火災報警控制器信號二總線,無極性
D1、D2:DC24V電源輸入端子,無極性
G、NG、V+、NO:DC24V有源輸出輔助端子,出廠默認為有源輸出:G和NG短接、V+和NO短接當需無源常開輸出:應將G、NG、V+、NO之間的短路片斷開。
I、G:與被控制設備無源常開觸點連接,用于實現設備動作回答確認(也可通過電子編碼器設為常閉輸入或自回答)
COM、S-:有源輸出端子,啟動后輸出DC24V,COM為正極、S-為負極
COM、NO:無源常開輸出端子
模塊輸入端如果設置為“常開檢線”狀態輸入,模塊輸入線末端(遠離模塊端)必須并聯一個4.7kΩ的終端電阻;模塊輸入端如果設置為“常閉檢 線”狀態輸入模塊輸入線末端(遠離模塊端)必須串聯一個4.7kΩ的終端電阻。模塊為有源輸出時,G和NG、V+、NO應該短接,COM、S-有源輸出端 應并聯一個4.7kΩ的終端電阻,并串聯一個IN4007二極管。
a.模塊通過有源輸出直接驅動一臺排煙口或防火閥等(電動脫扣式)設備的接線示意圖如圖8(無源常開檢線輸入)、圖9所示(無源常閉檢線輸入):

圖8 GST-LD-8301模塊接線示意圖

圖9 無源常閉檢線輸入
b.模塊無源輸出觸點控制設備的接線示意圖如圖10(無源常開檢線輸入)、圖11所示(無源常閉檢線輸入):

圖10 模塊無源輸出觸點控制設備的接線示意圖

圖11 無源常閉檢線輸入
四、GST-LD-8303輸入輸出模塊

點擊圖片進入GST-LD-8303輸入輸出模塊產品詳情頁
模塊的安裝方法與GST-LD-8319輸入模塊相同,其對外端子示意圖如圖12:

圖12 GST-LD-8303輸入模塊對外端子示意圖
其中:
Z1、Z2:接火災報警控制器信號二總線,無極性
D1、D2:DC24V電源輸入端子,無極性
I1、G:第一路無源輸入端(可通過電子編碼器設為常開檢線、常閉檢線、自回答方式)
I2、G:第二路無源輸入端(可通過電子編碼器設為常開檢線、常閉檢線、自回答方式)
S1+、S1-:第一路有源輸出端子
S2+、S2-:第二路有源輸出端子
模塊輸入端如果設置為“常開檢線”狀態輸入,模塊輸入線末端(遠離模塊端)必須并聯一個4.7kΩ的終端電阻;模塊輸入端如果設置為“常閉檢 線”狀態輸入模塊輸入線末端(遠離模塊端)必須串聯一個4.7kΩ的終端電阻。模塊為有源輸出時,有源輸出端應并聯一個4.7kΩ的終端電阻,并串聯一個 IN4007二極管。
a.模塊與防火卷簾門電氣控制箱(標準型)接線示意圖如圖13(無源常開檢線輸入)、圖14所示(無源常閉檢線輸入):

圖13 GST-LD-8303模塊與防火卷簾門電氣控制箱(標準型)接線示意圖
圖13

圖14 無源常閉檢線輸入接線示意圖
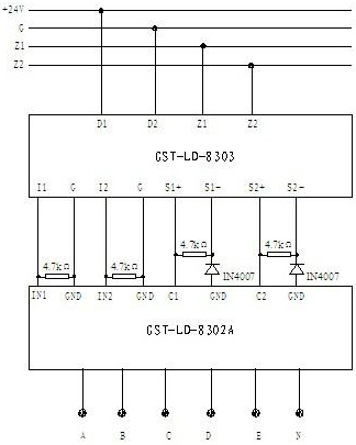
b.GST-LD-8303型模塊與GST-LD-8302A型模塊組合連接的方法如圖15所示:

圖15 GST-LD-8303型模塊與GST-LD-8302A型模塊組合連接的方法
五、GST-LD-8302切換模塊

點擊圖片進入GST-LD-8302切換模塊產品詳情頁
切換對外端子示意圖如圖16:
圖16 GST-LD-8302切換模塊對外端子示意圖
其中:
NC、COM、NO:常閉、常開控制觸點輸出端子
O、G:有源DC24V控制信號輸入端子,輸入無極性
驅動交流型設備的方法如圖17所示:

圖17 驅動交流型設備的方法
六、GST-LD-8313隔離器

點擊圖片直接進入GST-LD-8313隔離器產品詳情頁
隔離器的外形尺寸及結構與GST-LD-8319輸入模塊相同,安裝方法也相同,一般安裝在總線的分支處,可直接串聯在總線上,其端子示意圖如圖18:
圖18 GST-LD-8319輸入模塊端子示意圖
其中:
Z1、Z2:無極性信號二總線輸入端子
ZO1、ZO2:無極性信號二總線輸出端子,動作電流為100mA
七、GST-LD-8321中繼模塊

點擊圖片進入GST-LD-8321中繼模塊產品詳情頁
對外接線端子圖如圖19:

圖19 GST-LD-8321中繼模塊對外接線端子圖
其中:
24VIN:DC24V電源無極性輸入端子,電源與中繼器的輸出總線共地。
Z1IN、Z2IN:無極性信號二總線輸入端子,與控制器無極性信號二總線輸出連接,距離應小于1000m。
Z1O、Z2O:隔離無極性兩總線輸出端子,總線最大長度應小于1000m。
八、GST-LD-8305輸出模塊

點擊圖片進入GST-LD-8305輸出模塊產品詳情頁
GST-LD-8305型模塊的外形尺寸及結構與GST-LD-8319輸入模塊相同,安裝方法也相同,其對外端子示意圖如圖20:

圖20 GST-LD-8305輸出模塊對外端子示意圖
其中:
Z1、Z2:接火災報警控制器信號二總線,無極性
D1、D2:DC24V電源輸入端子,無極性
ZC1、ZC2:正常廣播線輸入端子
XF1、XF2:消防廣播線輸入端子
SP1、SP2:與放音設備連接的輸出端子
系統接線圖如圖21所示。

圖21 系統接線圖
海灣消防公司主營:海灣消防報警系統銷售,消防設備安裝,海灣氣體滅火、海灣電氣火災、消防水噴淋系統施工安裝,售后維修,海灣消防網站:http://www.jiangsaihua2008.cn/;海灣消防服務熱線:4006-598-119
本頁關鍵詞:海灣消防模塊83系列接線圖大全
上一篇:海灣GST9000火災報警控制器(聯動型)安裝使用說明書 下一篇:消防檢測基礎常識
技術資料更多 >>


蘇公網安備32058102002147號